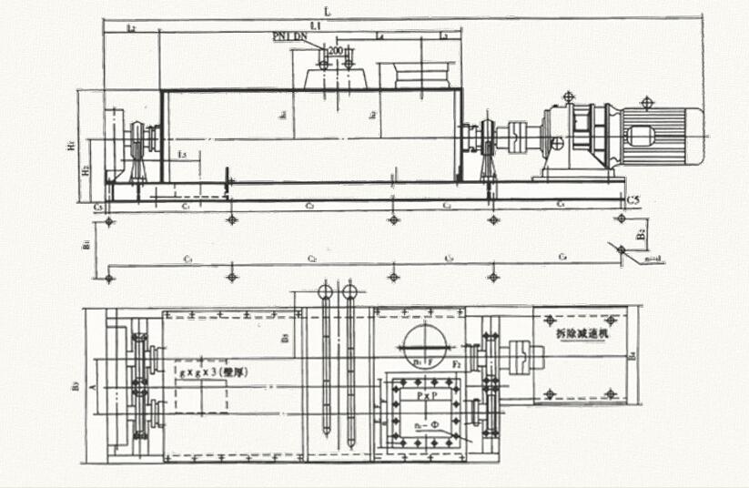
SJ型双轴搅拌机是将粉状物料进行喷水搅拌、混合的设备。主要使用在火力发电厂的除尘器下,也可供化工、冶金、矿山、建材等行业使用。通过控制加水量,以达到核实的湿度要求。采用两组螺旋叶片进行搅拌。搅拌效果高,占地面积少。螺旋叶片采用高耐磨特种合金或复合陶瓷,使用寿命长。双轴搅拌机采用摆线针轮减速器传动,转动平稳。噪音低。双轴搅拌机从顶部进料,底部排料,结构合理。各结合之间的密封严密,运行平稳。双轴搅拌机舍友加湿喷水系统,保证喷水均匀,调节供水量来满足需要。采用手压油泵集中供给四个传动轴承润滑油脂,方便设备的使用维护,具有省时的特点。

