一、概述
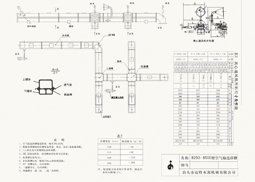
空气输送斜槽(以下简称斜槽)是一种广泛地应用于输送干燥粉状物料的气力输送设备,在水泥工业中常用于输送水泥和生料粉,斜槽是由若干个普通薄钢板制成的槽子与其它附件用螺栓联接而成。槽子上、下壳体之间夹有透气层,斜槽整体与水平倾斜一定角度。
斜槽主要构件是透气层,本系列设计中采用的柔性厚型板式合成纤维织物,是一种新型透气层,它具有耐高温(可达150℃)耐腐蚀,耐磨损,吸湿性低,重量轻,表面平整,使用寿命长等优点。透气层无需现场安装,每节槽体由制造厂组装后,现场对接起来即可,这样既减少了安装工作量,又保证了质量。
二、性能
1、输送物料:干燥的粉状物料。
2、输送量:
斜槽的输送量受很多因素的影响,往往变化很大。我们根据理论计算、国内外参考资料、现场调查综合分析,在斜度6%时推荐下列数值供选用者参考。
